
Ferestre

Usi

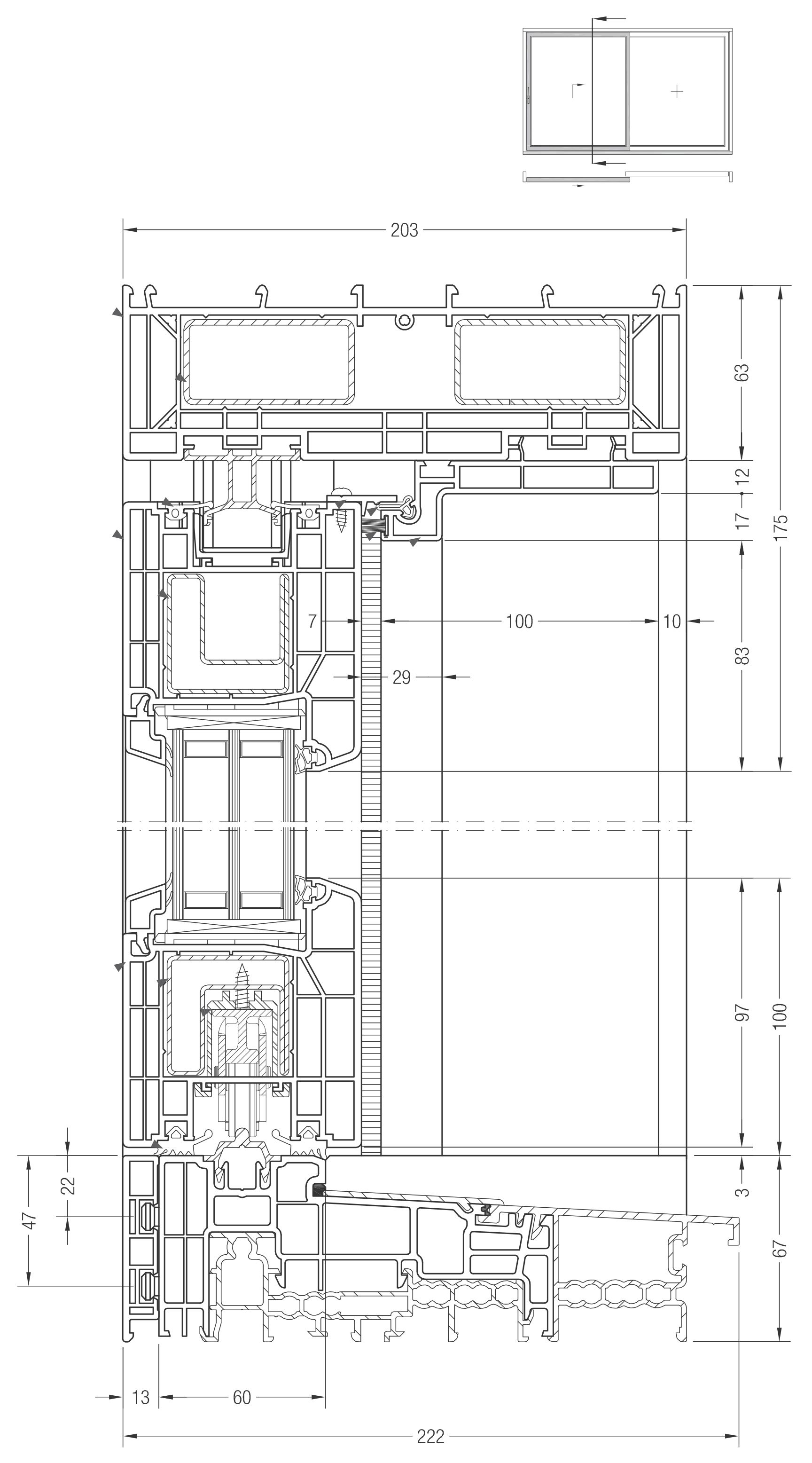
Usi culisante
Puteti opta pentru designul potrivit, alegand din cadrul numeroaselor culori si decoruri perfect adaptate oricaarei viziuni arhitecturale. Putetti alege intre un alb luminos sau orice alta nuanta realizata prin infoliere cu folii imitatie de lemn, uni sau speciale.
Standard BASIC
Canatul si rama sunt intr-un singur plan si au suprafetele HDF.
Noua forma a carcasei asigura montarea perfecta si functionarea sigura si usoara a feroneriei, protejand-o de intemperii.
Armatura din aluminiu cu bariera termica izoleaza foarte eficient. Canalele pentru suruburi permit montarea oricarui tip de prag.
Se pot monta pachete de sticla cu grosimi pâna la 53 mm.
Pragurile se incadreaza in cerintele constructiilor fara obstacole (max. 20 mm diferenta de nivel).
Profilele speciale asigura etanseitatea perfecta intre panouri, permitand si realizarea panourilor in culori diferite (interior / exterior).
Elementele de fixare sunt mascate de profile de sistem standardizate.
Canatul si rama sunt intr-un singur plan si au suprafetele HDF.
Standard PREMIUM




Profile albe:
Profile color:
Latimea minima a canatului ≥ 900mm pt canate pana la 300 Kg
Latimea minima a canatului ≥ 1425mm pt canate de la 301 pana la 400 Kg
* Functie de zona de montaj, respectiv factorii climatici (expunerea la actiunea vantului etc.)
Garniturile de etansare continue, cu colturile vulcanizate, protejeaza fata de curentii de aer, praf, apa si pierderi de caldura.
Armatura din aluminiu prevazuta cu bariera termica, in combinatie cu rama multicamerala, garanteaza proprietati termoizolante exceptionale.
Fara frezari suplimentare - Exista capace de capat profilate pentru sina de sus si calea de rulare!
Nervurile ramei permit clipsarea diverselor profile auxiliare si din seria de 86mm.
Armatura din Alu (cu rupere termica) este prevazuta cu canale pentru insurabare integrate asigura o conexiune rapida si stabila intre rame si pragul de aluminiu
Rama este prevazuta cu canale de insurubare suplimentare asigurand conexiuni sigure si stabile intre rame si prag (varianta cu armatura din otel)
Alternativ rama poate fi armata si cu armaturi din otel.
Datorita adancimii constructive, respectiv a faltului generos, se pot monta geamuri/panouri termoizolante cu grosimi de pana la 53mm
Carcasele de protectie din otel ale rolelor, asigura o functionare sigura a mecanismului precum si o stabilitate a canatului datorita contactului direct cu armatura.

GENEO® este din punct de vedere energetic cel mai bun sistem de profile pentru ferestre cu adancimea de 86 mm care exista in acest moment pe piata de constructii. Particularitatea sistemelor GENEO®, este materialul hightech RAU-FIPRO®. Acest material compozit din fibre de sticla confera acestor termopane Rehau o stabilitate deosebita. Prin aceasta tehnica, armaturile de otel nemaifiind necesare, se asigura o reducere a costurilor cu 90%. in acest fel, GENEO® asigura cele mai bune valori de izolatie termica, eliminandu-se puntile termice cauzate de utilizarea armaturilor de otel. Chiar si normativele tehnice pentru conservarea energiei (EnEV), sunt realizate peste cerinte cu GENEO®. in acelasi timp, sistemul de ferestre ofera premisele pentru design si confort, fara a fi nevoie de solutii de compromis.
*Valori de calcul: Reducerea pierderii de energie prin ferestre prin inlocuirea celor vechi din lemn / PVC din anii 80 (Uf= 1,9, Ug= 3,0) cu termopane REHAU GENEO (Uf= 0,86, Ug= 0,5, dimensiune fereastra 123x148 cm)
Urmatoarele articole auxiliare si produse aditionale sunt disponibile pentru termopanele REHAU GENEO®:
Click aici pentru download PDF - paleta culori termopane Rehau
Foliile noastre decorative sunt de cea mai inalta calitate:

Gratie elementelor de geam dimensionate generos, lumina patrunde in caminul dumneavoastra, la fel si prin usa culisanta cu ridicare evolutionDrive, care trezeste la viata spatiile interioare. Structura usii asigurs stabilitate optima, permitand suprafete generoase de sticla şi elemente mari, deschise prin diferite scheme de operare. Termoizolarea eficienta a acestei solutii de sistem se datoreaza planului de etansare optimizat, in special in partea de mijloc, pentru ca frigul sa ramana acolo unde ii este locul.
Operare confortabila cu un singur maner;
Culisare lina si functionare fiabila;
Fara pericol de impiedicare, executie la acelasi nivel cu pardoseala;